Проекты и решенияВнедренные проекты
Рекомендации по построению систем пожарной автоматики в соответствии с СП 484.1311500.2020 изм.1
Автоматизация проектирования BolidCAD
Оборудование Болид в Едином реестре российской радиоэлектронной продукции
Приглашаем принять участие в опросе

Внедренные проекты

Продукцией компании «Болид» оснащено около 1 миллиона объектов.
На карте размещены объекты, информация по которым предоставлена компаниями, зарегистрированными в партнерском разделе сайта.
По определенным причинам Исполнители не могут публиковать полный перечень выполненных проектов.
За более полной информацией можете обратиться к Исполнителю.


АПС и СОУЭ в зданиях АО «Чукотэнерго»
АПС и СОУЭ в зданиях АО «Чукотэнерго»

Система противопожарной защиты АПС и СОУЭ в здании БВЦ и в в здании временного пребывания работников вахтовым методом

Исполнитель:
ООО "БЕЛЫЙ ПРОЕКТ"
СПА и СОУЭ на объектах института ядерных исследований Российской академии наук
СПА и СОУЭ на объектах института ядерных исследований Российской академии наук

Система автоматической пожарной сигнализации и система оповещения и управления эвакуацией людей при пожаре на объектах Федерального государственного бюджетного учреждения науки Институт ядерных исследований Российской академии наук (ИЯИ РАН)

Исполнитель:
ООО "БЕЛЫЙ ПРОЕКТ"
Санаторий "Введенское" АО "Медицинский центр"
Санаторий "Введенское" АО "Медицинский центр"

Разработка рабочей документации на СПС и СОУЭ

Исполнитель:
Назаров Александр Юрьевич
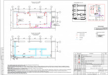
БЦ Вант. Офисный центр 7-этажный
БЦ Вант. Офисный центр 7-этажный

Защите подлежит здание бизнес-центра «Вант» по адресу: г. Санкт-Петербург, пр. Обуховской Обороны, д. 120, литера «И». Назначение здания — офисный центр. Класс функциональной опасности — Ф 4.3. В здании имеются четыре лестничных клетки.

Исполнитель:
Петербург Сервис (HELMAN Group)
СПС, СОУЭ
СПС, СОУЭ

СПС и СОУЭ. Муниципальное учреждение культуры "Сельский дом культуры "Быково" (МУК "СДК "Быково")

Исполнитель:
Назаров Александр Юрьевич
Автовокзал г. Березники
Автовокзал г. Березники

Монтаж систем АПС и СОУЭ в административном здании автовокзала

Исполнитель:
ООО "ЭРА"
Акционерное Общество «Охтинский комбинат»
Акционерное Общество «Охтинский комбинат»

РАБОЧАЯ ДОКУМЕНТАЦИЯ Автоматической установки пожарной сигнализации и системы оповещения и управления эвакуацией в здании котельной Охтинского комбината

Исполнитель:
Петербург Сервис (HELMAN Group)
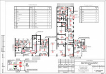
ТЦ "Киндер Молл"
ТЦ "Киндер Молл"

Здание торгового центра "Киндер Молл" представляет собой отдельно стоящее восьми этажное строение с цокольным этажом, выполненное из кирпича и бетонных блоков.

Исполнитель:
ООО "Алерт"
Система экстренного оповещения
Система экстренного оповещения

Система экстренного оповещения об угрозе возникновения или возникновении чрезвычайной ситуации в здании МБОУ Школа № 93 по адресу Красноярский край, г. Железногорск, ул. Толстого, д. 22

Исполнитель:
Индивидуальный предприниматель Голубев Евгений Александрович
АПС и СОУЭ на объектах ФКУ ИК-2 УФСИН России по Сахалинской области
АПС и СОУЭ на объектах ФКУ ИК-2 УФСИН России по Сахалинской области

Система пожарной автоматики (СПА) и система оповещения и управления эвакуацией людей при пожаре (СОУЭ) предусматривается в существующем здании овощехранилища и в существующем здании продовольственного склада

Исполнитель:
ООО "БЕЛЫЙ ПРОЕКТ"
Центр физической культуры и спорта «Юность»
Центр физической культуры и спорта «Юность»

Система пожарной автоматики (СПА) и система оповещения и управления эвакуацией людей при пожаре (СОУЭ) на объектах Муниципального учреждения «Центр физической культуры и спорта «Юность»

Исполнитель:
ООО "БЕЛЫЙ ПРОЕКТ"
Страницы12345678910
Ctrl Предыдущая   Следующая Ctrl