Проекты и решенияВнедренные проектыОбеспечение ОПС к нормативу на объектах БТС (ЦТП, БТП), ЦТП 20
Рекомендации по построению систем пожарной автоматики в соответствии с СП 484.1311500.2020 изм.1
Автоматизация проектирования BolidCAD
Оборудование Болид в Едином реестре российской радиоэлектронной продукции
Приглашаем принять участие в опросе

Обеспечение ОПС к нормативу на объектах БТС (ЦТП, БТП), ЦТП 20

Обеспечение ОПС к нормативу на объектах БТС (ЦТП, БТП), ЦТП 20

Исполнитель:
ООО"СтройСфера"

Выполненные работы по проекту:
  • разработка проекта
  • монтаж, пусконаладка
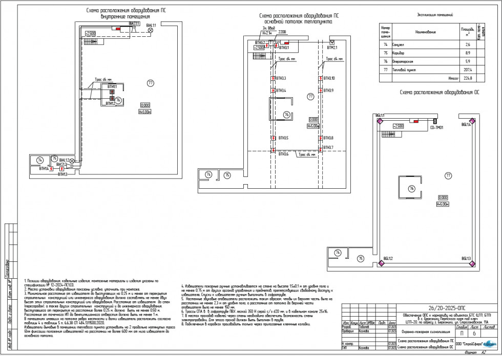
Обеспечение ОПС к нормативу на объектах БТС (ЦТП, БТП) в г. Березники Пермского края под ключ ЦТП-20, по адресу г. Березники, ул. Строгановская, 11А
Адрес объекта: Россия, Пермский край, г. Березники, ул. Строгановская, 11А

Тип объекта: Объект энергетики (АЭС, ГРЭС, ТЭЦ, подстанции)

Для реализации проекта была использована следующая продукция

Пожарная сигнализация
АРМ
шт.
Сетевой контроллер
шт.
Прибор
шт.
Извещатель
шт.
Повторитель, преобразователь интерфейса
шт.
Прочее
шт.
1
1
1
2
Итого:
5

Охранная сигнализация
АРМ
шт.
Сетевой контроллер
шт.
Прибор
шт.
Извещатель
шт.
Повторитель, преобразователь интерфейса
шт.
Прочее
шт.
1
1
1
2
Итого:
5