Проекты и решенияПроектно-монтажные организацииООО"СтройСфера"
Рекомендации по построению систем пожарной автоматики в соответствии с СП 484.1311500.2020 изм.1
Автоматизация проектирования BolidCAD
Оборудование Болид в Едином реестре российской радиоэлектронной продукции
Приглашаем принять участие в опросе

ООО"СтройСфера"

ООО"СтройСфера"

Адрес: Пермский край, г.Березники, ул. Ломоносова, д. 89А/1
Телефоны: 8-3424-266-114/ 8-964-190-333-1/ 8-964-190-333-2
Email: sbsfera@yandex.ru
Cайт: СБСФЕРА.РФ

Сертификаты ( что это? )

Пожарная сигнализация Автоматика пожаротушения Оповещение о пожаре Охранная сигнализация

Проектно-монтажная компания «СтройСфера» выполняет широкий диапазон инженерных услуг на высоком профессиональном уровне. Мы решаем производственные задачи любой сложности, связанные с обеспечением пожарной безопасности и автоматизации внутренних инженерных систем, монтируем пожарные сигнализации и системы пожаротушения, консультируем и подбираем оптимальные решения для вашего предприятия или объекта по демократичным ценам и в кратчайший срок.

Проектно-монтажная компания «СтройСфера» выполняет широкий диапазон инженерных услуг на высоком профессиональном уровне. Мы решаем производственные задачи любой сложности, связанные с обеспечением пожарной безопасности и автоматизации внутренних инженерных систем, монтируем пожарные сигнализации и системы пожаротушения, консультируем и подбираем оптимальные решения для вашего предприятия или объекта по демократичным ценам и в кратчайший срок.

Компания была основана специалистами со стажем работы в сфере пожарной безопасности свыше 11 лет.

Благодаря выверенным шагам, направленным на развитие партнерских отношений, и высокому качеству инженерных услуг, мы долгое время выступаем в качестве надежного и добросовестного партнера.

На сегодняшний день компанией «СтройСфера» смонтировано более 500 объектов, начиная от Торговых центров и заканчивая жилыми застройками и Заводы !

Принципы компании: Быть честными к себе и окружающим, быть лучшими в решении поставленных задач и всегда делать больше, чем от нас ожидают.

Наши преимущества:
-Свыше 50 высококвалифицированных специалистов могут проконсультировать Вас в любом вопросе, который касается пожарной безопасности и автоматизации внутренних инженерных систем.
-В штате "СтройСфера" порядка 60 опытных монтажников, что позволяет нам предоставлять демократичные цены на услуги за счёт большого объёма работ.
-Мы имеем свои склады для хранения оборудования и материалов, что позволяет закупать материалы большим объемом и по минимальной стоимости.
-Смонтированные объекты мы сдаём в Государственную пожарную испытательную лабораторию.
-Отдел управления и обеспечения качества проверяет нормативность оказанных услуг на всех наших объектах
-Мы бесплатно консультируем наших клиентов в области пожарной безопасности и инженерных систем.
-Сплоченность коллектива — основа продуктивности компании!
Молодой и дружный коллектив нашей организации позволяет обеспечить динамичность выполнения работ. Полные энергии сотрудники всегда стремятся к саморазвитию, полной самоотдаче своему делу, внедрению новейших технологий и оптимизации бизнес-процессов оказания услуг.

Сегодня этот фактор дает свои плоды: большее количество сотрудников "СтройСфера" обладает высоким профессиональным потенциалом. Мы уверены, что каждый, начиная от руководителя и заканчивая монтажником, дорожит репутацией "СтройСфера".

Лицензии:

1-Лицензия МЧС №59-Б/00650 от 26.11.2018г.
2-Свидетельство Строители Урала (СУ) №СРО-С-171-13012010 от 05.04.2019г.
3-Свидетельство Проектные организации Урала (ПОУ) №СРО-П-112-11012010 от 29.04.2019г.
4-Сертификат IST:
-ГОСТ Р ИСО 9001-2015 (IST 9001:2015)
-ГОСТ Р ИСО 14001-2016 (IST 14001:2015)
-ГОСТ Р 54934-2012 (OHSAS 18001:2007)
Список проектов, на которых применяется оборудование НВП "Болид".
По определенным причинам Исполнители не могут публиковать полный перечень выполненных проектов.
За более полной информацией можете обратиться к Исполнителю.


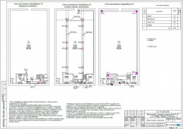
Проектирование "Монтаж АПС и СОУЭ в к. 172"
Проектирование "Монтаж АПС и СОУЭ в к. 172"

ЗАВОДСКИЕ УСЛОВИЯ - ПРОМЫШЛЕННАЯ ПЛОЩАДКА ФИЛИАЛА "АЗОТ" АО "ОХК "УРАЛХИМ" В Г. БЕРЕЗНИКИ ПЕРМСКОГО КРАЯ.

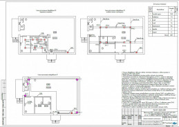
Проектирование "Монтаж АПС и СОУЭ в к. 559"
Проектирование "Монтаж АПС и СОУЭ в к. 559"

ЗАВОДСКИЕ УСЛОВИЯ - ПРОМЫШЛЕННАЯ ПЛОЩАДКА ФИЛИАЛА "АЗОТ" АО "ОХК "УРАЛХИМ" В Г. БЕРЕЗНИКИ ПЕРМСКОГО КРАЯ.

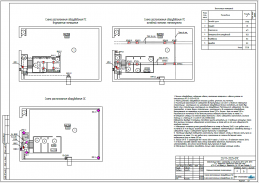
Монтаж АУПС и СОУЭ в кор.332 п/ст. 52
Монтаж АУПС и СОУЭ в кор.332 п/ст. 52

ЗАВОДСКИЕ УСЛОВИЯ - ПРОМЫШЛЕННАЯ ПЛОЩАДКА ФИЛИАЛА "АЗОТ" АО "ОХК "УРАЛХИМ" В Г. БЕРЕЗНИКИ ПЕРМСКОГО КРАЯ

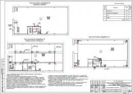
Монтаж АУПС и СОУЭ в кор. 267 п/ст. 21а
Монтаж АУПС и СОУЭ в кор. 267 п/ст. 21а

ЗАВОДСКИЕ УСЛОВИЯ - ПРОМЫШЛЕННАЯ ПЛОЩАДКА ФИЛИАЛА "АЗОТ" АО "ОХК "УРАЛХИМ" В Г.БЕРЕЗНИКИ ПЕРМСКОГО КРАЯ.

Монтаж АУПС и СОУЭ в к. 5 п/ст 14
Монтаж АУПС и СОУЭ в к. 5 п/ст 14

ЗАВОДСКИЕ УСЛОВИЯ - ПРОМЫШЛЕННАЯ ПЛОЩАДКА ФИЛИАЛА "АЗОТ" АО "ОХК "УРАЛХИМ" В Г. БЕРЕЗНИКИ ПЕРМСКОГО КРАЯ

Монтаж АУПС и СОУЭ в кор. 530 п/ст. 7а,70
Монтаж АУПС и СОУЭ в кор. 530 п/ст. 7а,70

ЗАВОДСКИЕ УСЛОВИЯ - ПРОМЫШЛЕННАЯ ПЛОЩАДКА ФИЛИАЛА "АЗОТ" АО "ОХК "УРАЛХИМ" В Г. БЕРЕЗНИКИ ПЕРМСКОГО КРАЯ.

Монтаж АУПС и СОУЭ в кор. 262 п/ст. 22
Монтаж АУПС и СОУЭ в кор. 262 п/ст. 22

ЗАВОДСКИЕ УСЛОВИЯ - ПРОМЫШЛЕННАЯ ПЛОЩАДКА ФИЛИАЛА "АЗОТ" АО "ОХК "УРАЛХИМ" В Г. БЕРЕЗНИКИ ПЕРМСКОГО КРАЯ

Монтаж АУПС и СОУЭ в п/ст. 22 кор. 262
Монтаж АУПС и СОУЭ в п/ст. 22 кор. 262

ЗАВОДСКИЕ УСЛОВИЯ - ПРОМЫШЛЕННАЯ ПЛОЩАДКА ФИЛИАЛА "АЗОТ" АО "ОХК "УРАЛХИМ" В Г. БЕРЕЗНИКИ ПЕРМСКОГО КРАЯ

Монтаж АУПС и СОУЭ в п/ст. 52 кор.332
Монтаж АУПС и СОУЭ в п/ст. 52 кор.332

ЗАВОДСКИЕ УСЛОВИЯ - ПРОМЫШЛЕННАЯ ПЛОЩАДКА ФИЛИАЛА "АЗОТ" АО "ОХК "УРАЛХИМ" В Г. БЕРЕЗНИКИ ПЕРМСКОГО КРАЯ

Монтаж АУПС и СОУЭ в п/ст 14 к. 5
Монтаж АУПС и СОУЭ в п/ст 14 к. 5

ЗАВОДСКИЕ УСЛОВИЯ - ПРОМЫШЛЕННАЯ ПЛОЩАДКА ФИЛИАЛА "АЗОТ" АО "ОХК "УРАЛХИМ" В Г. БЕРЕЗНИКИ ПЕРМСКОГО КРАЯ

"Система пожарной сигнализации и система оповещения и управления эвакуацией людей при пожаре", по адресу: Пермский край, г. Березники, ул. Веры Бирюковой, 7
"Система пожарной сигнализации и система оповещения и управления эвакуацией людей при пожаре", по адресу: Пермский край, г. Березники, ул. Веры Бирюковой, 7

Проектные работы по системе пожарной сигнализации (СПС) и системе оповещения и управления эвакуацией людей (СОУЭ)» по адресу: Пермский край, г. Березники, ул. Веры Бирюковой, 7

Обеспечение ОПС к нормативу на объектах БТС (ЦТП, БТП), ЦТП 07
Обеспечение ОПС к нормативу на объектах БТС (ЦТП, БТП), ЦТП 07

Обеспечение ОПС к нормативу на объектах БТС (ЦТП, БТП) в г. Березники Пермского края под ключ ЦТП-07, по адресу г. Березники, ул. Уральских Танкистов, 6

Обеспечение ОПС к нормативу на объектах БТС (ЦТП, БТП), ЦТП 11
Обеспечение ОПС к нормативу на объектах БТС (ЦТП, БТП), ЦТП 11

Обеспечение ОПС к нормативу на объектах БТС (ЦТП, БТП) в г. Березники Пермского края под ключ ЦТП-11, по адресу г. Березники, ул. 30 лет Победы,9

Обеспечение ОПС к нормативу на объектах БТС (ЦТП, БТП), ЦТП 12
Обеспечение ОПС к нормативу на объектах БТС (ЦТП, БТП), ЦТП 12

Обеспечение ОПС к нормативу на объектах БТС (ЦТП, БТП) в г. Березники Пермского края под ключ ЦТП-12, по адресу г. Березники, ул. 30 лет Победы, 18

Обеспечение ОПС к нормативу на объектах БТС (ЦТП, БТП), ЦТП 13
Обеспечение ОПС к нормативу на объектах БТС (ЦТП, БТП), ЦТП 13

Обеспечение ОПС к нормативу на объектах БТС (ЦТП, БТП) в г. Березники Пермского края под ключ ЦТП-13, по адресу г. Березники, ул. Пятилетки, 136

Обеспечение ОПС к нормативу на объектах БТС (ЦТП, БТП), ЦТП 14
Обеспечение ОПС к нормативу на объектах БТС (ЦТП, БТП), ЦТП 14

Обеспечение ОПС к нормативу на объектах БТС (ЦТП, БТП) в г. Березники Пермского края под ключ ЦТП-14, по адресу г. Березники, ул. Ив. Дощеникова, 14

Обеспечение ОПС к нормативу на объектах БТС (ЦТП, БТП), ЦТП 17
Обеспечение ОПС к нормативу на объектах БТС (ЦТП, БТП), ЦТП 17

Обеспечение ОПС к нормативу на объектах БТС (ЦТП, БТП) в г. Березники Пермского края под ключ ЦТП-17, по адресу г. Березники, ул. Юбилейная, 129

Обеспечение ОПС к нормативу на объектах БТС (ЦТП, БТП), ЦТП 18
Обеспечение ОПС к нормативу на объектах БТС (ЦТП, БТП), ЦТП 18

Обеспечение ОПС к нормативу на объектах БТС (ЦТП, БТП) в г. Березники Пермского края под ключ ЦТП-07, по адресу г. Березники, ул. Пятилетки, 115

Обеспечение ОПС к нормативу на объектах БТС (ЦТП, БТП), ЦТП 20
Обеспечение ОПС к нормативу на объектах БТС (ЦТП, БТП), ЦТП 20

Обеспечение ОПС к нормативу на объектах БТС (ЦТП, БТП) в г. Березники Пермского края под ключ ЦТП-20, по адресу г. Березники, ул. Строгановская, 11А

Обеспечение ОПС к нормативу на объектах БТС (ЦТП, БТП), ЦТП 26
Обеспечение ОПС к нормативу на объектах БТС (ЦТП, БТП), ЦТП 26

Обеспечение ОПС к нормативу на объектах БТС (ЦТП, БТП) в г. Березники Пермского края под ключ ЦТП-26, по адресу г. Березники, ул. Юбилейная, 131

Обеспечение ОПС к нормативу на объектах БТС (ЦТП, БТП), ЦТП 27
Обеспечение ОПС к нормативу на объектах БТС (ЦТП, БТП), ЦТП 27

Обеспечение ОПС к нормативу на объектах БТС (ЦТП, БТП) в г. Березники Пермского края под ключ ЦТП-27, по адресу г. Березники, ул. Набережная, 21А

Обеспечение ОПС к нормативу на объектах БТС (ЦТП, БТП), ЦТП 28
Обеспечение ОПС к нормативу на объектах БТС (ЦТП, БТП), ЦТП 28

Обеспечение ОПС к нормативу на объектах БТС (ЦТП, БТП) в г. Березники Пермского края под ключ ЦТП-28, по адресу г. Березники, ул. Свердлова, 170А

Монтаж АУПС и СОУЭ в п/ст. 7а,70 кор. 530
Монтаж АУПС и СОУЭ в п/ст. 7а,70 кор. 530

ЗАВОДСКИЕ УСЛОВИЯ - ПРОМЫШЛЕННАЯ ПЛОЩАДКА ФИЛИАЛА "АЗОТ" АО "ОХК "УРАЛХИМ" В Г. БЕРЕЗНИКИ ПЕРМСКОГО КРАЯ.

Монтаж АУПС и СОУЭ в п/ст. 21а кор. 267
Монтаж АУПС и СОУЭ в п/ст. 21а кор. 267

ЗАВОДСКИЕ УСЛОВИЯ - ПРОМЫШЛЕННАЯ ПЛОЩАДКА ФИЛИАЛА "АЗОТ" АО "ОХК "УРАЛХИМ" В Г.БЕРЕЗНИКИ ПЕРМСКОГО КРАЯ.

Капитальный ремонт АПС и СОУЭ в здании по адресу: Пермский край, г. Березники, пр. Монтажников, 5
Капитальный ремонт АПС и СОУЭ в здании по адресу: Пермский край, г. Березники, пр. Монтажников, 5

«Проектные работы по системе пожарной сигнализации (СПС) и системе оповещения и управления эвакуацией людей (СОУЭ)» по адресу: Пермский край, г. Березники, пр.Монтажников, д.5.

Проектирование АПС и СОУЭ
Проектирование АПС и СОУЭ

Разработка проектной документации на АПС и СОУЭ

Капитальный ремонт АУПТ, АУПС и СОУЭ цех 3А, корпус 756 Филиала "АЗОТ" АО "ОХК "УРАЛХИМ" в г. Березники Пермского края
Капитальный ремонт АУПТ, АУПС и СОУЭ цех 3А, корпус 756 Филиала "АЗОТ" АО "ОХК "УРАЛХИМ" в г. Березники Пермского края

ЗАВОДСКИЕ УСЛОВИЯ - ПРОМЫШЛЕННАЯ ПЛОЩАДКА ФИЛИАЛА "АЗОТ" АО "ОХК "УРАЛХИМ" В Г. БЕРЕЗНИКИ ПЕРМСКОГО КРАЯ

Монтаж АПТ филиал «Азот» АО «ОХК «УРАЛХИМ» в городе Березник
Монтаж АПТ филиал «Азот» АО «ОХК «УРАЛХИМ» в городе Березник

ЗАВОДСКИЕ УСЛОВИЯ - ПРОМЫШЛЕННАЯ ПЛОЩАДКА ФИЛИАЛА "АЗОТ" АО "ОХК "УРАЛХИМ" В Г. БЕРЕЗНИКИ ПЕРМСКОГО КРАЯ

Монтаж АУПС и СОУЭ в  помещениях подстанций №85, 86 ЦЭС филиала «Азот» АО «ОХК  «УРАЛХИМ» в городе Березники
Монтаж АУПС и СОУЭ в помещениях подстанций №85, 86 ЦЭС филиала «Азот» АО «ОХК «УРАЛХИМ» в городе Березники

ЗАВОДСКИЕ УСЛОВИЯ - ПРОМЫШЛЕННАЯ ПЛОЩАДКА ФИЛИАЛА "АЗОТ" АО "ОХК "УРАЛХИМ" В Г. БЕРЕЗНИКИ ПЕРМСКОГО КРАЯ

Монтаж АУПС и СОУЭ в корпусах 611, 612, 261
Монтаж АУПС и СОУЭ в корпусах 611, 612, 261

ЗАВОДСКИЕ УСЛОВИЯ - ПРОМЫШЛЕННАЯ ПЛОЩАДКА ФИЛИАЛА "АЗОТ" АО "ОХК "УРАЛХИМ" В Г.БЕРЕЗНИКИ ПЕРМСКОГО КРАЯ

МОНТАЖ АПС и СОУЭ В АБК КОРП. 415 ЦЕХА КрАК ФИЛИАЛА "АЗОТ"
МОНТАЖ АПС и СОУЭ В АБК КОРП. 415 ЦЕХА КрАК ФИЛИАЛА "АЗОТ"

ЗАВОДСКИЕ УСЛОВИЯ - ПРОМЫШЛЕННАЯ ПЛОЩАДКА ФИЛИАЛА "АЗОТ" АО "ОХК "УРАЛХИМ" В Г.БЕРЕЗНИКИ ПЕРМСКОГО КРАЯ.

МОНТАЖ АУПС и СОУЭ В КОРП.322 И ГАЛЕРЕЕ ЦЕХА НИТРИТ-НИТРАТНЫХ СОЛЕЙ (ННС)
МОНТАЖ АУПС и СОУЭ В КОРП.322 И ГАЛЕРЕЕ ЦЕХА НИТРИТ-НИТРАТНЫХ СОЛЕЙ (ННС)

ЗАВОДСКИЕ УСЛОВИЯ - ПРОМЫШЛЕННАЯ ПЛОЩАДКА ФИЛИАЛА "АЗОТ" АО "ОХК "УРАЛХИМ" В Г.БЕРЕЗНИКИ ПЕРМСКОГО КРАЯ.

МОНТАЖ АПС и СОУЭ В КОРП. 353, 732, 474, 96, 556
МОНТАЖ АПС и СОУЭ В КОРП. 353, 732, 474, 96, 556

ЗАВОДСКИЕ УСЛОВИЯ - ПРОМЫШЛЕННАЯ ПЛОЩАДКА ФИЛИАЛА "АЗОТ" АО "ОХК "УРАЛХИМ" В Г.БЕРЕЗНИКИ ПЕРМСКОГО КРАЯ.

МОНТАЖ АУПС ЦЕХ ННС КОРПУС 449 ОТМ.18,00 ПОТОЧНО-ТРАНСПОРТНАЯ ЛИНИЯ
МОНТАЖ АУПС ЦЕХ ННС КОРПУС 449 ОТМ.18,00 ПОТОЧНО-ТРАНСПОРТНАЯ ЛИНИЯ

ЗАВОДСКИЕ УСЛОВИЯ - ПРОМЫШЛЕННАЯ ПЛОЩАДКА ФИЛИАЛА "АЗОТ" АО "ОХК "УРАЛХИМ" В Г.БЕРЕЗНИКИ ПЕРМСКОГО КРАЯ.

МОНТАЖ АПС и СОУЭ В КОР. 193 РЕМОНТНО-ПРОИЗВОДСТВЕННОГО УПРАВЛЕНИЯ ФИЛИАЛА "АЗОТ"
МОНТАЖ АПС и СОУЭ В КОР. 193 РЕМОНТНО-ПРОИЗВОДСТВЕННОГО УПРАВЛЕНИЯ ФИЛИАЛА "АЗОТ"

ЗАВОДСКИЕ УСЛОВИЯ - ПРОМЫШЛЕННАЯ ПЛОЩАДКА ФИЛИАЛА "АЗОТ" АО "ОХК "УРАЛХИМ" В Г.БЕРЕЗНИКИ ПЕРМСКОГО КРАЯ

МОНТАЖ АПС и СОУЭ В КОРП.601 РЕМОНТНО-ПРОИЗВОДСТВЕННОГО УПРАВЛЕНИЯ
МОНТАЖ АПС и СОУЭ В КОРП.601 РЕМОНТНО-ПРОИЗВОДСТВЕННОГО УПРАВЛЕНИЯ

ЗАВОДСКИЕ УСЛОВИЯ - ПРОМЫШЛЕННАЯ ПЛОЩАДКА ФИЛИАЛА "АЗОТ" АО "ОХК "УРАЛХИМ" В Г.БЕРЕЗНИКИ ПЕРМСКОГО КРАЯ.

МОНТАЖ АПС и СОУЭ В КОРП.124 РЕМОНТНО-ПРОИЗВОДСТВЕННОГО УПРАВЛЕНИЯ
МОНТАЖ АПС и СОУЭ В КОРП.124 РЕМОНТНО-ПРОИЗВОДСТВЕННОГО УПРАВЛЕНИЯ

ЗАВОДСКИЕ УСЛОВИЯ - ПРОМЫШЛЕННАЯ ПЛОЩАДКА ФИЛИАЛА "АЗОТ" АО "ОХК "УРАЛХИМ" Г.БЕРЕЗНИКИ ПЕРМСКОГО КРАЯ

МОНТАЖ АПС и СОУЭ В КОРП.176 РЕМОНТНО-ПРОИЗВОДСТВЕННОГО УПРАВЛЕНИЯ
МОНТАЖ АПС и СОУЭ В КОРП.176 РЕМОНТНО-ПРОИЗВОДСТВЕННОГО УПРАВЛЕНИЯ

ЗАВОДСКИЕ УСЛОВИЯ - ПРОМЫШЛЕННАЯ ПЛОЩАДКА ФИЛИАЛА "АЗОТ" АО "ОХК "УРАЛХИМ" В Г.БЕРЕЗНИКИ ПЕРМСКОГО КРАЯ.

МОНТАЖ АУПС и СОУЭ КОРП. 750, 750А ФИЛИАЛА "АЗОТ"
МОНТАЖ АУПС и СОУЭ КОРП. 750, 750А ФИЛИАЛА "АЗОТ"

ЗАВОДСКИЕ УСЛОВИЯ - ПРОМЫШЛЕННАЯ ПЛОЩАДКА ФИЛИАЛА "АЗОТ" АО "ОХК "УРАЛХИМ" Г.БЕРЕЗНИКИ ПЕРМСКОГО КРАЯ

МОНТАЖ АПС КОРП.333  ПОДСТАНЦИЯ "АЗОТ-2" ФИЛИАЛА "АЗОТ"
МОНТАЖ АПС КОРП.333 ПОДСТАНЦИЯ "АЗОТ-2" ФИЛИАЛА "АЗОТ"

ЗАВОДСКИЕ УСЛОВИЯ - ПРОМЫШЛЕННАЯ ПЛОЩАДКА ФИЛИАЛА "АЗОТ" АО "ОХК "УРАЛХИМ" Г.БЕРЕЗНИКИ ПЕРМСКОГО КРАЯ

МОНТАЖ АПС и СОУЭ КОРП. 87 ПОДСТАНЦИЯ №7 ФИЛИАЛА "АЗОТ"
МОНТАЖ АПС и СОУЭ КОРП. 87 ПОДСТАНЦИЯ №7 ФИЛИАЛА "АЗОТ"

ЗАВОДСКИЕ УСЛОВИЯ - ПРОМЫШЛЕННАЯ ПЛОЩАДКА ФИЛИАЛА "АЗОТ" АО "ОХК "УРАЛХИМ" Г.БЕРЕЗНИКИ ПЕРМСКОГО КРАЯ

ПРОЕКТИРОВАНИЕ, МОНТАЖ АПС В КАБЕЛЬНОЙ ГАЛЕРЕЕ ПО ПРОЕЗДУ 0-1 (ОТ ПРОЕЗДА Б-В ДО КОРП.317)
ПРОЕКТИРОВАНИЕ, МОНТАЖ АПС В КАБЕЛЬНОЙ ГАЛЕРЕЕ ПО ПРОЕЗДУ 0-1 (ОТ ПРОЕЗДА Б-В ДО КОРП.317)

ЗАВОДСКИЕ УСЛОВИЯ - ПРОМЫШЛЕННАЯ ПЛОЩАДКА ФИЛИАЛА "АЗОТ" АО "ОХК "УРАЛХИМ" В Г.БЕРЕЗНИКИ ПЕРМСКОГО КРАЯ.

ПРОЕКТИРОВАНИЕ, МОНТАЖ АПС В КАБЕЛЬНОЙ ГАЛЕРЕЕ ПО ПРОЕЗДУ 1-2 (ОТ ПРОЕЗДА Г-Д ДО КОРП.753)
ПРОЕКТИРОВАНИЕ, МОНТАЖ АПС В КАБЕЛЬНОЙ ГАЛЕРЕЕ ПО ПРОЕЗДУ 1-2 (ОТ ПРОЕЗДА Г-Д ДО КОРП.753)

ЗАВОДСКИЕ УСЛОВИЯ - ПРОМЫШЛЕННАЯ ПЛОЩАДКА ФИЛИАЛА "АЗОТ" АО "ОХК "УРАЛХИМ" В Г.БЕРЕЗНИКИ ПЕРМСКОГО КРАЯ.

МОНТАЖ АПС и СОУЭ В КОРПУСЕ 86 ФИЛИАЛА "АЗОТ"
МОНТАЖ АПС и СОУЭ В КОРПУСЕ 86 ФИЛИАЛА "АЗОТ"

ЗАВОДСКИЕ УСЛОВИЯ - ПРОМЫШЛЕННАЯ ПЛОЩАДКА ФИЛИАЛА "АЗОТ" АО "ОХК "УРАЛХИМ" В Г.БЕРЕЗНИКИ ПЕРМСКОГО КРАЯ.

МОНТАЖ АУПТ с СОУЭ В КОРП. А9020, А9030, А9040, А9050
МОНТАЖ АУПТ с СОУЭ В КОРП. А9020, А9030, А9040, А9050

ЗАВОДСКИЕ УСЛОВИЯ - ПРОМЫШЛЕННАЯ ПЛОЩАДКА ФИЛИАЛА "АЗОТ" АО "ОХК "УРАЛХИМ" Г.БЕРЕЗНИКИ ПЕРМСКОГО КРАЯ

МОНТАЖ АПС и СОУЭ В КОРП.684, 686, 688, 689
МОНТАЖ АПС и СОУЭ В КОРП.684, 686, 688, 689

ЗАВОДСКИЕ УСЛОВИЯ - ПРОМЫШЛЕННАЯ ПЛОЩАДКА ФИЛИАЛА "АЗОТ" АО "ОХК "УРАЛХИМ" Г.БЕРЕЗНИКИ ПЕРМСКОГО КРАЯ

МОНТАЖ АПС и СОУЭ ЦЕХ №3 КОРПУС 131
МОНТАЖ АПС и СОУЭ ЦЕХ №3 КОРПУС 131

ЗАВОДСКИЕ УСЛОВИЯ - ПРОМЫШЛЕННАЯ ПЛОЩАДКА ФИЛИАЛА "АЗОТ" АО "ОХК "УРАЛХИМ" В Г.БЕРЕЗНИКИ ПЕРМСКОГО КРАЯ.

МОНТАЖ АПС и СОУЭ ВГСО КОРП.179, 179А
МОНТАЖ АПС и СОУЭ ВГСО КОРП.179, 179А

ЗАВОДСКИЕ УСЛОВИЯ - ПРОМЫШЛЕННАЯ ПЛОЩАДКА ФИЛИАЛА "АЗОТ" АО "ОХК "УРАЛХИМ" В Г.БЕРЕЗНИКИ ПЕРМСКОГО КРАЯ.

МОНТАЖ АУПС и СОУЭ КОРПУС 752/1, 752/2
МОНТАЖ АУПС и СОУЭ КОРПУС 752/1, 752/2

ЗАВОДСКИЕ УСЛОВИЯ - ПРОМЫШЛЕННАЯ ПЛОЩАДКА ФИЛИАЛА "АЗОТ" АО "ОХК "УРАЛХИМ" Г.БЕРЕЗНИКИ ПЕРМСКОГО КРАЯ

МОНТАЖ АУПС и СОУЭ КОРПУС 135 (СКЛАД №13, АБК)
МОНТАЖ АУПС и СОУЭ КОРПУС 135 (СКЛАД №13, АБК)

ЗАВОДСКИЕ УСЛОВИЯ - ПРОМЫШЛЕННАЯ ПЛОЩАДКА ФИЛИАЛА "АЗОТ" АО "ОХК "УРАЛХИМ" В Г.БЕРЕЗНИКИ ПЕРМСКОГО КРАЯ.

МОНТАЖ АУПС и СОУЭ В КОРПУСЕ 297 ЦЕХА №3
МОНТАЖ АУПС и СОУЭ В КОРПУСЕ 297 ЦЕХА №3

ЗАВОДСКИЕ УСЛОВИЯ - ПРОМЫШЛЕННАЯ ПЛОЩАДКА ФИЛИАЛА "АЗОТ" АО "ОХК "УРАЛХИМ" Г.БЕРЕЗНИКИ ПЕРМСКОГО КРАЯ

МОНТАЖ АПС и СОУЭ В ЦЕХЕ №3 КОРПУС 542
МОНТАЖ АПС и СОУЭ В ЦЕХЕ №3 КОРПУС 542

ЗАВОДСКИЕ УСЛОВИЯ - ПРОМЫШЛЕННАЯ ПЛОЩАДКА ФИЛИАЛА "АЗОТ" АО "ОХК "УРАЛХИМ" Г.БЕРЕЗНИКИ ПЕРМСКОГО КРАЯ

МОНТАЖ УСТАНОВКИ АПС, АПТ и СОУЭ корп. 756, 757, 753, 762
МОНТАЖ УСТАНОВКИ АПС, АПТ и СОУЭ корп. 756, 757, 753, 762

ЗАВОДСКИЕ УСЛОВИЯ - ПРОМЫШЛЕННАЯ ПЛОЩАДКА ФИЛИАЛА "АЗОТ" АО "ОХК "УРАЛХИМ" В Г.БЕРЕЗНИКИ ПЕРМСКОГО КРАЯ.

ПРОЕКТИРОВАНИЕ АПС, СОУЭ И АУПТ ЯНАО г. МУРАВЛЕНКО
ПРОЕКТИРОВАНИЕ АПС, СОУЭ И АУПТ ЯНАО г. МУРАВЛЕНКО

ПРОЕКТИРОВАНИЕ В ЗДАНИЯХ СКЛАДОВ, ПРОИЗВОДСТВЕННЫХ И АДМИНИСТРАТИВНО-БЫТОВЫХ ЗДАНИЯХ БАЗЫ ПРОИЗВОДСТВЕННОГО ОБСЛУЖИВАНИЯ Г.МУРАВЛЕНКО. ЯНАО, БПО-4, ПРОМЫШЛЕННАЯ ЗОНА ПАНЕЛЬ №6.

СИСТЕМА АВТОМАТИЧЕСКОГО ПОЖАРОТУШЕНИЯ
СИСТЕМА АВТОМАТИЧЕСКОГО ПОЖАРОТУШЕНИЯ

ЯНАО, Г.НОВЫЙ УРЕНГОЙ, ПЕСЦОВОЕ НГКМ, КУСТОВАЯ ПЛОЩАДКА №2, БРИГАДА №30. БУРОВАЯ УСТАНОВКА "УРАЛМАШ" 5000/320ЭК БМЧ

МОНТАЖ АУПС, АУПТ, СОУЭ В КОРП.681 АГРЕГАТА АММИАКА №2
МОНТАЖ АУПС, АУПТ, СОУЭ В КОРП.681 АГРЕГАТА АММИАКА №2

ЗАВОДСКИЕ УСЛОВИЯ - ПРОМЫШЛЕННАЯ ПЛОЩАДКА ФИЛИАЛА "АЗОТ" АО "ОХК "УРАЛХИМ" Г.БЕРЕЗНИКИ ПЕРМСКОГО КРАЯ

МОНТАЖ АПС И СОУЭ
МОНТАЖ АПС И СОУЭ

СКЛАДСКОЕ ПОМЕЩЕНИЕ

МОДЕРНИЗАЦИЯ СПА И СОУЭ КОРПУС 708 ЦСХ
МОДЕРНИЗАЦИЯ СПА И СОУЭ КОРПУС 708 ЦСХ

ЗАВОДСКИЕ УСЛОВИЯ - ПРОМЫШЛЕННАЯ ПЛОЩАДКА ФИЛИАЛА "АЗОТ" АО "ОХК "УРАЛХИМ" В Г.БЕРЕЗНИКИ ПЕРМСКОГО КРАЯ

МОНТАЖ АУПС, СОУЭ В АБК КОРПУС 449
МОНТАЖ АУПС, СОУЭ В АБК КОРПУС 449

ЗАВОДСКИЕ УСЛОВИЯ - ПРОМЫШЛЕННАЯ ПЛОЩАДКА ФИЛИАЛА "АЗОТ" АО "ОХК "УРАЛХИМ" В Г.БЕРЕЗНИКИ ПЕРМСКОГО КРАЯ.

МОНТАЖ СПС И СОУЭ КОРПУС 1118
МОНТАЖ СПС И СОУЭ КОРПУС 1118

ЗАВОДСКИЕ УСЛОВИЯ - ПРОМЫШЛЕННАЯ ПЛОЩАДКА ФИЛИАЛА "АЗОТ" АО "ОХК "УРАЛХИМ" В Г.БЕРЕЗНИКИ ПЕРМСКОГО КРАЯ

МОНТАЖ АУПС,  СОУЭ В КОРПУСЕ 157 (ЦПГ)
МОНТАЖ АУПС, СОУЭ В КОРПУСЕ 157 (ЦПГ)

ЗАВОДСКИЕ УСЛОВИЯ - ПРОМЫШЛЕННАЯ ПЛОЩАДКА ФИЛИАЛА "АЗОТ" АО "ОХК "УРАЛХИМ" В Г.БЕРЕЗНИКИ ПЕРМСКОГО КРАЯ

МОНТАЖ АУПС, СОУЭ КОРПУС 680 АГРЕГАТА АММИАКА №2
МОНТАЖ АУПС, СОУЭ КОРПУС 680 АГРЕГАТА АММИАКА №2

ЗАВОДСКИЕ УСЛОВИЯ - ПРОМЫШЛЕННАЯ ПЛОЩАДКА ФИЛИАЛА "АЗОТ" АО "ОХК "УРАЛХИМ" В Г.БЕРЕЗНИКИ ПЕРМСКОГО КРАЯ

МОНТАЖ АУПС И СОУЭ КОРПУС 181 (ОРиО)
МОНТАЖ АУПС И СОУЭ КОРПУС 181 (ОРиО)

ЗАВОДСКИЕ УСЛОВИЯ - ПРОМЫШЛЕННАЯ ПЛОЩАДКА ФИЛИАЛА "АЗОТ" АО "ОХК "УРАЛХИМ" В Г.БЕРЕЗНИКИ ПЕРМСКОГО КРАЯ.

МОНТАЖ АУПС И СОУЭ В АБК КОРПУС 280
МОНТАЖ АУПС И СОУЭ В АБК КОРПУС 280

ЗАВОДСКИЕ УСЛОВИЯ - ПРОМЫШЛЕННАЯ ПЛОЩАДКА ФИЛИАЛА "АЗОТ" АО "ОХК "УРАЛХИМ" В Г.БЕРЕЗНИКИ ПЕРМСКОГО КРАЯ

МОНТАЖ АУПС И СОУЭ КОРПУС 159 (МСЧ)
МОНТАЖ АУПС И СОУЭ КОРПУС 159 (МСЧ)

ЗАВОДСКИЕ УСЛОВИЯ - ПРОМЫШЛЕННАЯ ПЛОЩАДКА ФИЛИАЛА "АЗОТ" АО "ОХК "УРАЛХИМ" В Г.БЕРЕЗНИКИ ПЕРМСКОГО КРАЯ

МОНТАЖ АУПТ В ПОМЕЩЕНИИ НАСОСНОЙ КОРПУС 654
МОНТАЖ АУПТ В ПОМЕЩЕНИИ НАСОСНОЙ КОРПУС 654

ЗАВОДСКИЕ УСЛОВИЯ - ПРОМЫШЛЕННАЯ ПЛОЩАДКА ФИЛИАЛА "АЗОТ" АО "ОХК "УРАЛХИМ" В Г.БЕРЕЗНИКИ ПЕРМСКОГО КРАЯ.

МОДЕРНИЗАЦИЯ СПС, СОУЭ КОРПУС 258, 258А
МОДЕРНИЗАЦИЯ СПС, СОУЭ КОРПУС 258, 258А

ЗАВОДСКИЕ УСЛОВИЯ - ПРОМЫШЛЕННАЯ ПЛОЩАДКА ФИЛИАЛА "АЗОТ" АО "ОХК "УРАЛХИМ" В Г.БЕРЕЗНИКИ ПЕРМСКОГО КРАЯ

МОДЕРНИЗАЦИЯ АУПС, СОУЭ В АБК КОРП.474 II ВОЦ-7
МОДЕРНИЗАЦИЯ АУПС, СОУЭ В АБК КОРП.474 II ВОЦ-7

ЗАВОДСКИЕ УСЛОВИЯ - ПРОМЫШЛЕННАЯ ПЛОЩАДКА ФИЛИАЛА "АЗОТ" АО "ОХК "УРАЛХИМ" Г.БЕРЕЗНИКИ ПЕРМСКОГО КРАЯ

МОНТАЖ АУПС, СОУЭ В КОРПУСЕ 263
МОНТАЖ АУПС, СОУЭ В КОРПУСЕ 263

ЗАВОДСКИЕ УСЛОВИЯ - ПРОМЫШЛЕННАЯ ПЛОЩАДКА ФИЛИАЛА "АЗОТ" АО "ОХК "УРАЛХИМ" В Г.БЕРЕЗНИКИ ПЕРМСКОГО КРАЯ.

МОНТАЖ АУПС, АУПТ, СОУЭ В КОРП.651 АГРЕГАТА АММИАКА №1
МОНТАЖ АУПС, АУПТ, СОУЭ В КОРП.651 АГРЕГАТА АММИАКА №1

ЗАВОДСКИЕ УСЛОВИЯ - ПРОМЫШЛЕННАЯ ПЛОЩАДКА ФИЛИАЛА "АЗОТ" АО "ОХК "УРАЛХИМ" В Г.бЕРЕЗНИКИ ПЕРМСКОГО КРАЯ.

МОНТАЖ АУПС И СОУЭ КОРПУС 168 (ПЧ-24)
МОНТАЖ АУПС И СОУЭ КОРПУС 168 (ПЧ-24)

ЗАВОДСКИЕ УСЛОВИЯ - ПРОМЫШЛЕННАЯ ПЛОЩАДКА ФИЛИАЛА "АЗОТ" АО "ОХК "УРАЛХИМ" Г.БЕРЕЗНИКИ ПЕРМСКОГО КРАЯ