Проекты и решенияВнедренные проектыПроектирование "Монтаж АПС и СОУЭ в к. 172"
Рекомендации по построению систем пожарной автоматики в соответствии с СП 484.1311500.2020 изм.1
Автоматизация проектирования BolidCAD
Оборудование Болид в Едином реестре российской радиоэлектронной продукции
Приглашаем принять участие в опросе

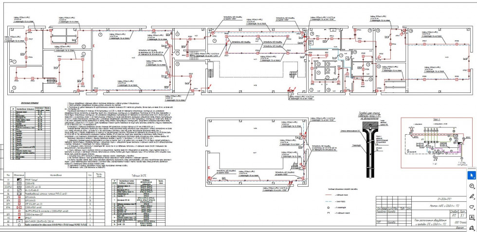
Проектирование "Монтаж АПС и СОУЭ в к. 172"

Проектирование "Монтаж АПС и СОУЭ в к. 172"

Исполнитель:
ООО"СтройСфера"

Выполненные работы по проекту:
  • разработка проекта
ЗАВОДСКИЕ УСЛОВИЯ - ПРОМЫШЛЕННАЯ ПЛОЩАДКА ФИЛИАЛА "АЗОТ" АО "ОХК "УРАЛХИМ" В Г. БЕРЕЗНИКИ ПЕРМСКОГО КРАЯ.
Адрес объекта: Россия, Приволжский, Пермский, Березники, Березники, Чуртанское шоссе, 75

Тип объекта: Промышленный объект (Заводы, фабрики, предприятия)

Для реализации проекта была использована следующая продукция

Пожарная сигнализация
АРМ
шт.
Сетевой контроллер
шт.
Прибор
шт.
Извещатель
шт.
Повторитель, преобразователь интерфейса
шт.
Прочее
шт.
1
1
1
1
25
4
13
1
8
6
Итого:
1
3
57

Оповещение о пожаре
АРМ
шт.
Сетевой контроллер
шт.
Прибор
шт.
Извещатель
шт.
Повторитель, преобразователь интерфейса
шт.
Прочее
шт.
1
1
1
1
Итого:
1
3