Проекты и решенияВнедренные проектыАПС и СОЭУЭ в здании гостиницы на 50 мест ТОО "Востокцветмет" п. Жезкент
Рекомендации по построению систем пожарной автоматики в соответствии с СП 484.1311500.2020 изм.1
Автоматизация проектирования BolidCAD
Оборудование Болид в Едином реестре российской радиоэлектронной продукции
Приглашаем принять участие в опросе

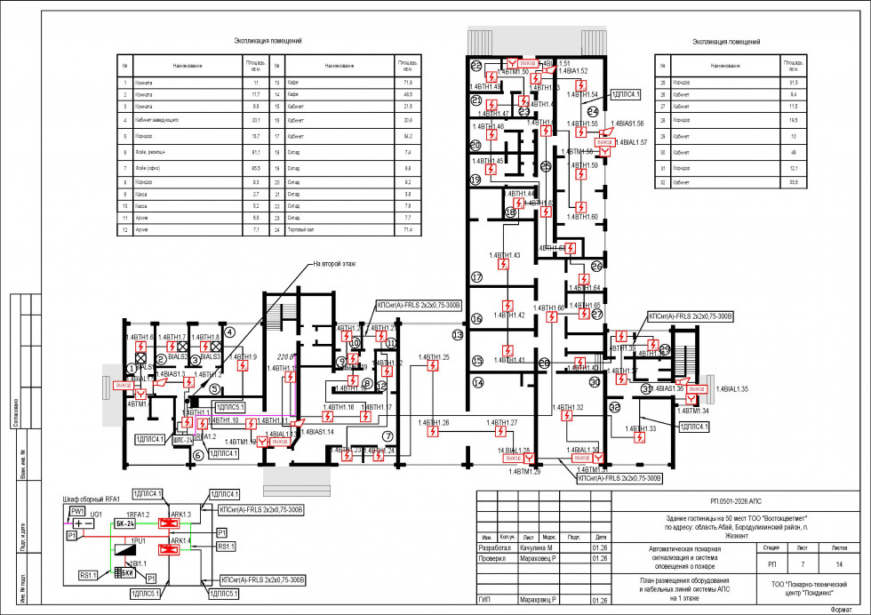
АПС и СОЭУЭ в здании гостиницы на 50 мест ТОО "Востокцветмет" п. Жезкент

АПС и СОЭУЭ в здании гостиницы на 50 мест ТОО "Востокцветмет" п. Жезкент

Исполнитель:
ТОО "Пожарно-технический центр "Пождитекс"

Выполненные работы по проекту:
  • разработка проекта
  • монтаж, пусконаладка
  • эксплуатация, обслуживание
Рабочий проект на оснащение системой Автоматической пожарной сигнализацией и системой оповещения о пожаре здание Гостиницы на 50 мест ТОО "Востокцветмет" по адресу: область Абай, Бородулихинский район, п. Жезкент
Адрес объекта: Казахстан, Восточно-Казахстанская область, поселок Жезкент

Тип объекта: Жилая недвижимость (Гостиницы, многоквартирные дома, коттеджи)

Для реализации проекта была использована следующая продукция

Пожарная сигнализация
АРМ
шт.
Сетевой контроллер
шт.
Прибор
шт.
Извещатель
шт.
Повторитель, преобразователь интерфейса
шт.
Прочее
шт.
1
1
2
1
43
10
44
Итого:
1
4
97

Оповещение о пожаре
АРМ
шт.
Сетевой контроллер
шт.
Прибор
шт.
Извещатель
шт.
Повторитель, преобразователь интерфейса
шт.
Прочее
шт.
1
1
1
9
6
Итого:
1
2
15